| Symbol oferty | LH1-MS-41415 | 
| Powierzchnia | 72,17 m² | 
| Powierzchnia użytkowa [m2] | 72,17 m² | 
| Liczba pokoi | 4 | 
| Liczba sypialni | 3 | 
| Rodzaj budynku | bliźniak | 
| Technologia budowlana | silikat | 
| Standard | |
| Opłaty w czynszu | - | 
| Opłaty wg liczników | woda, prąd, gaz | 
| Piętro | 1 | 
| Liczba pięter w budynku | 1 | 
| Garaż | brak | 
| Stan lokalu | deweloperski | 
| Okna | PCV 3 szyby, ciepły montaż | 
| Instalacje | ELEKTRYCZNA, WODNA, GAZOWA | 
| Balkon | duży | 
| Liczba balkonów | 1 | 
| Liczba tarasów | 1 | 
| Gaz | jest | 
| Woda | piecyk gazowy | 
| Dojazd | droga utwardzona | 
| Otoczenie | zabudowa jednorodzinna | 
| Ogrzewanie | C.O. GAZOWE | 
| Klucze | tak | 
| Pomieszczenia | |
| Powierzchnia pokoi | 19,00, 9,56, Pokój 9,04, 9,74 m2 | 
| Typ kuchni | aneks kuchenny połączony z jadalnią i salonem | 
| Rodzaj kuchni | jasna z oknem | 
| Powierzchnia kuchni | 7,59 m2 | 
| Typ łazienki | razem z wc | 
| Liczba łazienek | 1 | 
| Powierzchnia łazienki [m2] | 6,31 m2 | 
| Liczba przedpokoi | 2 | 
| Powierzchnia przedpokoi | 10,93 m2 | 
 
                        
                    
                            TYLKO U NAS ! Nie szukaj dalej !  OFERTA NA WYŁĄCZNOŚĆ 
W ofercie bezczynszowe mieszkanie w zacisznej ulicy Bezrzecza w Szczecinie,
na skraju ulic - Wronia i Różany Zakątek.
Jedno z czterech mieszkań, które mamy do zaprezentowania  mieści się w budynku dwulokalowym, w zabudowie bliźniaczej, na piętrze.
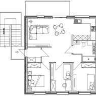
Na powierzchnię użytkową 72,17 m2 mieszkania składa się:
1.1 Wiatrołap 3,00
1.2 Komunikacja 7,93
1.3 Salon+ jadalnia 19,00
1.4 Kuchnia 7,59
1.5 Łazienka 6,31
1.6 Pokój 9,56
1.7 Pokój 9,04
1.8 Pokój 9,74
Przynależy do niego również taras  oraz W CENIE 2 MIEJSCA PARKINGOWE 
2 x miejsce postojowe 5x2,5 m
Budowa rozpoczęta w 2024 roku, wydanie mieszkania czerwiec/lipiec - stan deweloperski
INSTALACJE:
 WODOCIĄGOWA- woda z wodociągu miejskiego
 KANALIZACYJNA- odprowadzenie do sieci kanalizacji miejskiej
 CENTRALNEGO OGRZEWANIA- przy zastosowaniu kotła gazowego
 ELEKTRYCZNA-zasilanie kablem ziemnym
 WENTYLACJA MECHANICZNA
Budynki wentylowane za pomocą wentylacji mechanicznej z REKUPERACJI (odzyskiem ciepła), ogrzewanie podłogowe.
Prezentacja mieszkania w towarzystwie architekta wnętrz !
Serdecznie zapraszam do biura w celu zapoznania się szczegółowo z  ofertą.
oraz dokonania rezerwacji !
Pomagamy w uzyskaniu kredytu.
                        
 
        Wysokość raty
 
            
                    Taksa notarialna 
 (opłata notarialna)
                    
                
Wniosek o wpis do WKW
                    VAT od prowizji 
 agencji nieruchomości
                    
                
                    Vat od taksy notarialnej 
 (opłaty notarialnej)
                    
                
Prowizja agencji nieruchomości
Wypisy aktu notarialnego
Razem
Uwaga: mogą wystąpić dodatkowe opłaty za założenie księgi wieczystej oraz ustanowienie hipoteki.
POŚREDNIK W OBROCIE NIERUCHOMOŚCIAMI